Hochhaus Max-Frisch-Platz

Ort: Zürich, Schweiz
Studie: 2021


Durch die Revision der aus den 90er Jahren stammenden Bauvorschriften für Neu-Oerlikon werden neue Voraussetzungen für die bauliche Transformation des historisch stark industriell geprägt Stadtteils Oerlikon Nord geschaffen. Das direkt am Bahnhof gelegene Baufeld D15 soll eine urbane und dichte Bebauung mit einem vierten bzw. fünften Hochpunkt erhalten.

Die Machbarkeitsstudie entwickelt dazu anhand von zwei Nutzungsszenarien jeweils eine Bebauungstypologie mit dem Ziel, die Bandbreite denkbarer Gebäude- und Flächenorganisationen am Standort aufzuzeigen und konzeptionell vorzuschlagen.

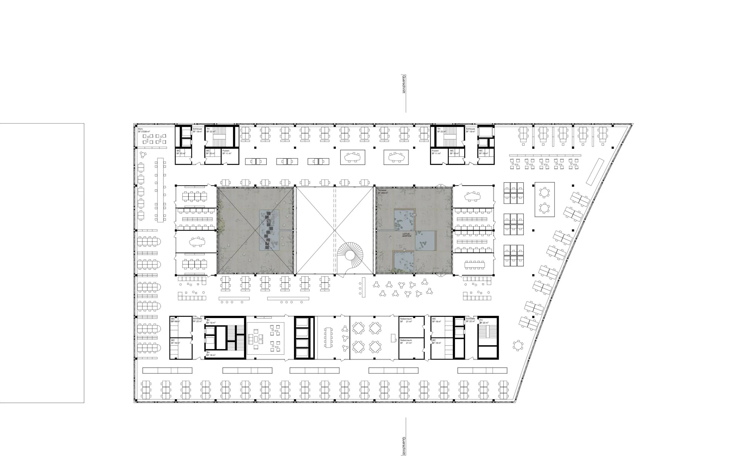
Der Fokus wird dabei im Szenario A auf ein reines Dienstleistungsgebäude gelegt, welches einen hohen Grad an Flexibilität hinsichtlich Flächenzuteilungen (Multi-Tenant-Fähigkeit) ausweist, zugleich aber eine einprägsame städtebauliche Gesamtsilhouette bildet. Bei der entwickelten Typologie werden die Strassenräume nach aussen hin durch eine Besetzung der Bebauungslinien klar gezeichnet, während das Innenleben des Sockelbaus von einer Hofterrasse geprägt ist. Der Hochpunkt türmt sich auf dem zweigeschossigen Sockel auf und orientiert sich mit seiner Längsfassade prominent zum Bahnhof hin.

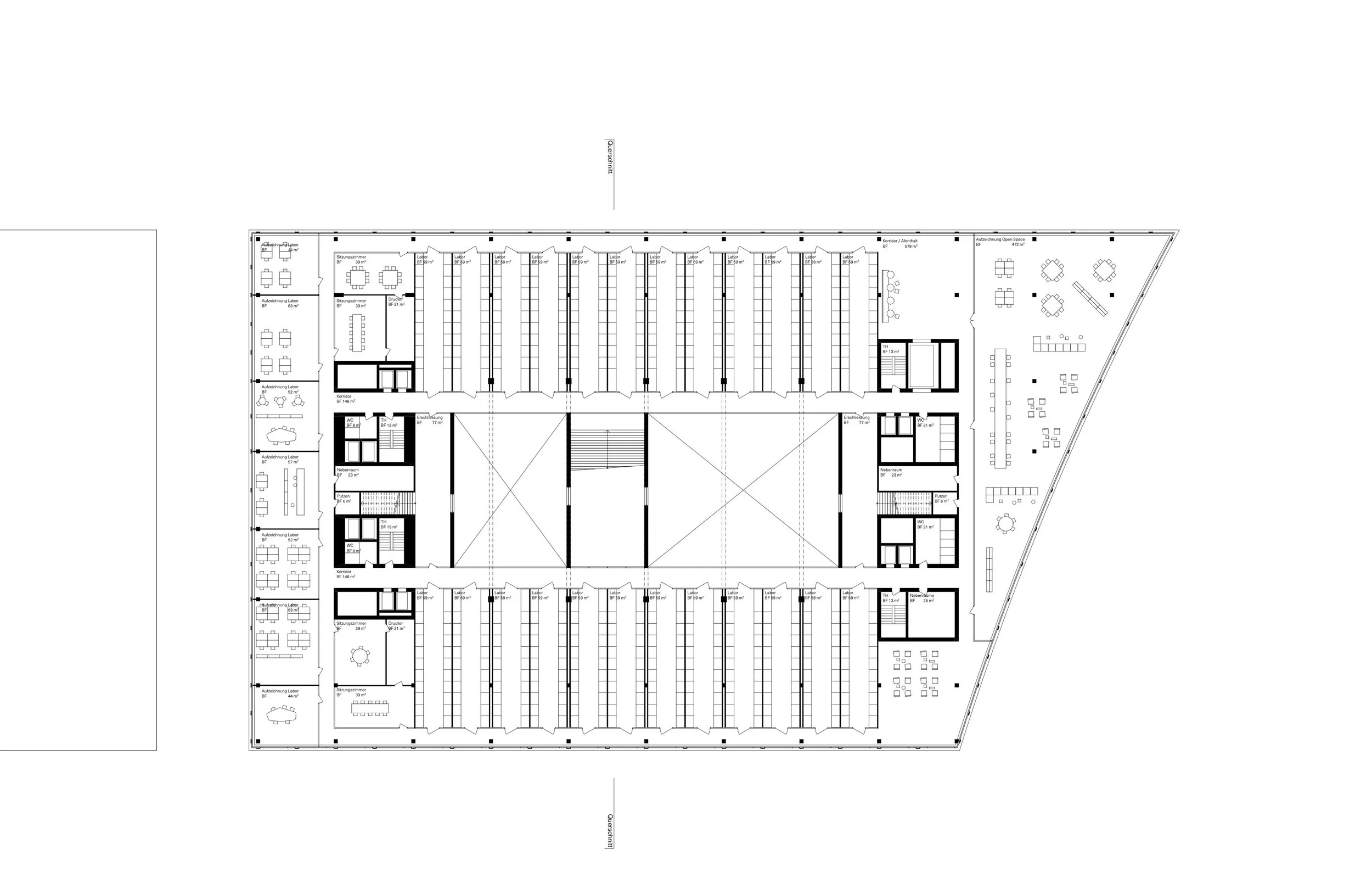
Für Szenario B wird ein komplexerer Nutzungsmix entwickelt: Im Sockel ist eine Bildungsnutzung vorgesehen, im Turm Wohnnutzungen. Die Bildungseinrichtung erweitert dabei den öffentlichen Stadtraum im Erdgeschoss und setzt sich über eine grosszügige Treppe in den ersten fünf Geschossen fort. Auf dem Bildungsbau aufgesetzt, aber bewusst von der vorderen Gebäudeflucht zurückgesetzt, werden in einem Ost-West-ausgerichteten Turm mögliche Wohnungsorganisationen aufgezeigt. Trotz des einheitlichen Fassadenbildes sind so zwei Baukörper ablesbar, welche die unterschiedlichen Nutzungen andeuten.

Projektdaten

Auftraggeber: ABB Schweiz AG
Planung / Spezialisten: Schnetzer Puskas Ingenieure
Bearbeitung: Machbarkeitsstudie und Potenzialanalyse

Szenario Dienstleistungsnutzung

Szenario Bildungs- und Wohnnutzung

Zurück
Zurück

Transformation Micafilareal

Weiter
Weiter

Wohnhäuser an der Spechtstrasse